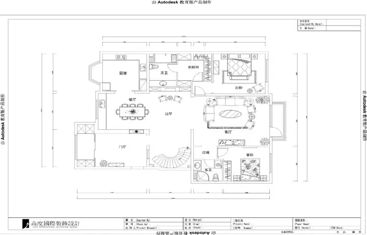
四室户型改造平面方案
*** 次数:1999998 已用完,请联系开发者***
难怪很多人设计玄关!看“丑户型”改造,才知有多巧妙在原户型非常差的情况下,要做到去弊存良,让居住更有品质感。 平面方案图 结合屋主的需求,以及考虑到原户型多为异形结构,所以整个空间设... 则在卫生间旁边改造出了一个储物间。这样一来,既解决了家里的杂物收纳需求,又兼具了家政区的功能性,从而让空间更加整洁。 卫生间 卫生间...

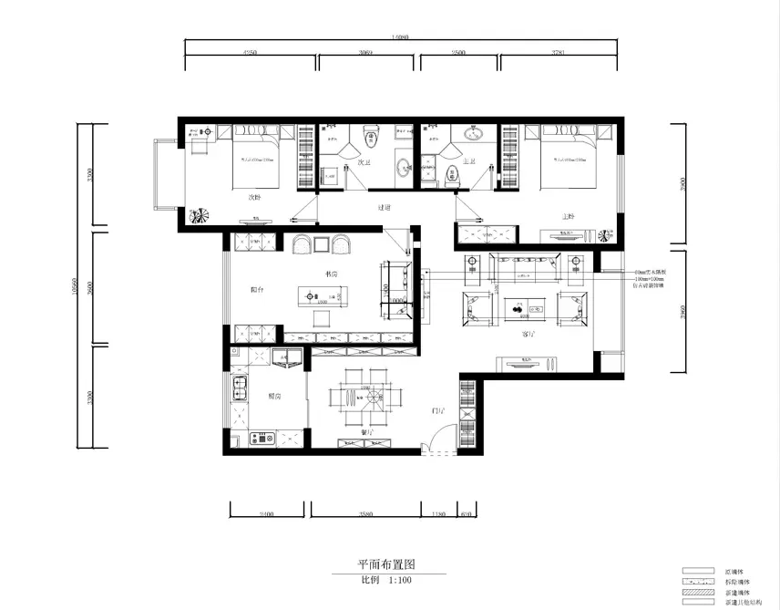
88㎡奶油原木风三居,收纳强超温暖,三代同堂各得其乐!平面布置图 根据深入的沟通与需求分析后,设计师针对性地对各区域进行了设计: 户型问题&改造对策: ①厨房使用面积较小且被动线限制了扩充,难以满足一家人的使用需求; 方案:在餐厅增设西厨柜作为厨房的延展,可用于简单的辅食早餐制作,也方便日常冷食的取拿储藏。 ②需要两间常住...

≥^≤ 去风格、去客厅,170㎡去家务化的家,舒服到爆!户型图平面方案 ▲客厅布局摈弃了“电视墙”的概念,布置了一个前卫舒适的休闲空间;进门侧边改造了一个储物间,方便家庭日常大小物件的收纳,避免杂物乱堆,就能省掉不少的收拾家务了;儿童房也是做好了孩子长大后了预设布置。 玄关 ▲玄关进门左侧是翻斗鞋柜+上部分洞洞板挂钩,...

120㎡新婚爱巢,法式浪漫与实用功能完美融合于是我们的设计方向也明了了——从浪漫的香榭丽舍出发 平面图 改造方案 1、原始的三室户型不变,因此拆改的部分不多,保留两间卧室的基础上,将第三间改为化妆衣帽间。 2、衣帽间稍作改造,墙体内推,为入户门侧设计了800库储物间。 3、借用主卧空间,扩大卫生间的使用面积。 在正...
>▂<
飞飞加速器部分文章、数据、图片来自互联网,一切版权均归源网站或源作者所有。
如果侵犯了你的权益请来信告知删除。邮箱:xxxxxxx@qq.com
上一篇:四室户型改造平面方案
下一篇:天行老版苹果手机